
Design Triple
Construction: SL-SH Special Steel Design
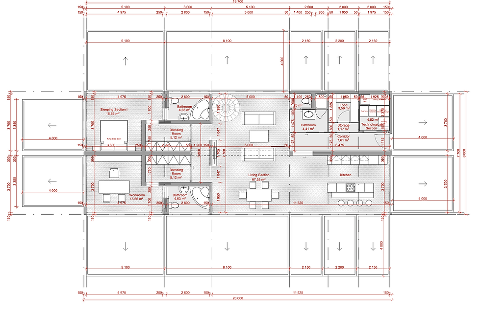
Width: 8m
Length: 20m
Height: 8m
Ceiling Height: 2,5 - 3 m
Weight: 60 - 70 T
Size of Living Area: 225 m2
Energy Efficiency Rating: A
Water Supply: Own Water Storage and Filtration and / or Central Connection
Sewerage System: Own Sewage Collection and Filtration and / or Central Connection
Electricity: Own Photovoltaics Panels, Battery Storage and El. Generator and / or Central Connection
Heating: Electricity - Floor Heating, Design Panels, Hot Air Recuperation, Fireplace
Ground Anchoring: Hydraulic Lock and / or Ground Screws or Special Concrete Slab
Composition of Walls: SL-SH Own Special Design
Accessories: SL-SH Garage, SL-SH Terrace, SL-SH Pool
Prize Range: 250 000,-€ - 550 000,-€
Availability Range: 9 - 18 Months





Ground Floor

